Domein met Chambre d'Hôtes, Gîte en camping
Ref #: LB5078N
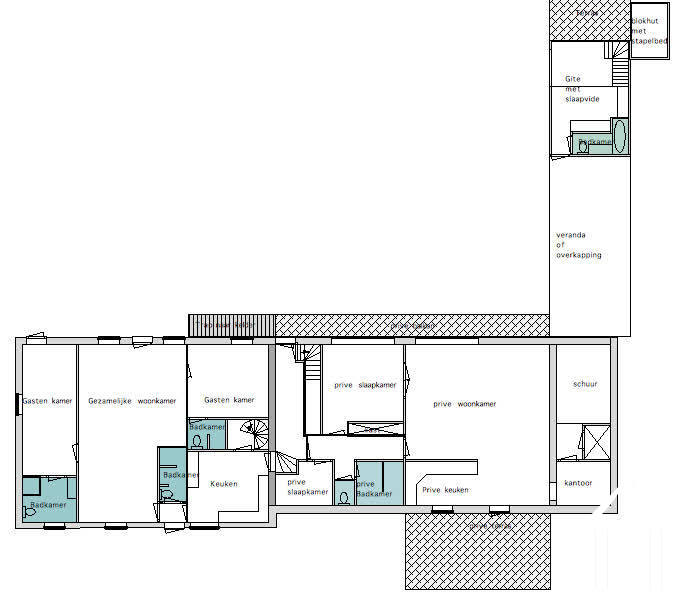
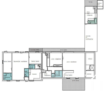
Makelaarscourtage is voor rekening verkoperHet bijzondere aan deze Chambres d’hotes is dat de gasten niet in het huis van de beheerders verblijven. Zowel de beheerders als de gasten hebben dus veel privacy. De beheerders woning heeft een ruime woonkamer, een eigen keuken, een kantoor, badkamer met apart toilet en drie slaapkamers
Maison d'Hôtes
In het gastenhuis zijn verschillende slaapkamers, elk met een eigen badkamer. Alle slaapkamers zijn voorzien van comfortabele bedden en goede matrassen. Ook bevindt zich in dit huis een keuken en een ruime gezamenlijke huiskamer met tafel voor 14 personen en een open haard. De Chambre d’Hotes kan ook als gite gebruikt worden ( 14 personen). Het Maison d’Hôtes is voorzien van een ruime zolder met mogelijkheid om nog meerdere kamers te creëren.
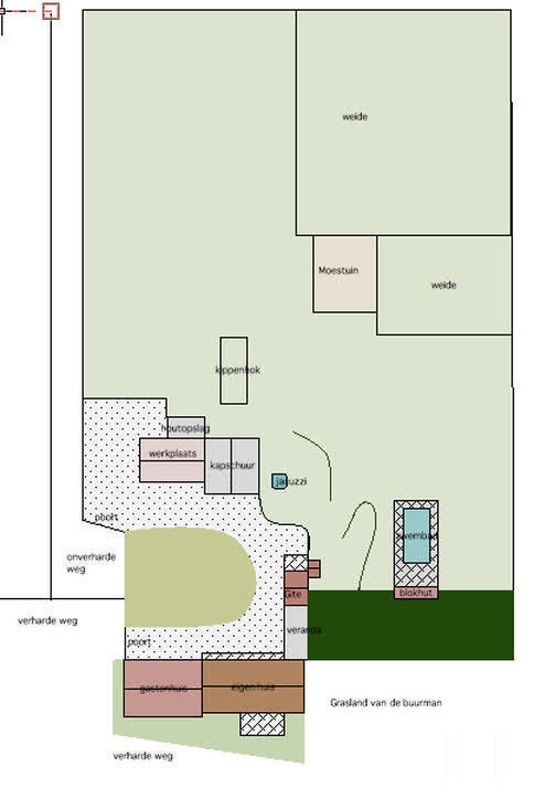
In de tuin staat een gite , deze is geschikt voor twee volwassenen en twee kinderen en is van alle gemakken voorzien; een eigen keuken, badkamer met ligbad en wasmachine en een eigen terras met barbecue.
Camping a la ferme
Dit domein was ooit een boerderij, daarom bestaat er ook de mogelijkheid om te 'kamperen bij de boer'. In de boomgaard is stroom aangelegd en er is een aanrecht met stromend koud water. In het Maison d'Hôtes is speciaal voor de campinggasten een extra badkamer ingericht.
Het gehele terrein en de gebouwen zijn in zeer goede staat en goed onderhouden. Er is een ontkalker voor het drinkwater. De riolering gaat via septic tanks. In de beheerderswoning staan twee houtkachels en er is een systeem aangelegd dat de warmte naar de gang, de badkamer en master bedroom verdeeld. In de keuken en badkamer is vloerverwarming aangelegd. Verder zijn er een aantal electrische kachels aanwezig, zo ook in het gastenhuis. In de woonkamer van het gastenhuis is nog een houtkachel aanwezig.
De Chambres d’hotes wordt compleet verkocht inclusief alle inventaris, goodwill en website
Een dossier met de milieurisico's betreffende dit pand is beschikbaar op eerste verzoek.
Het kan ook gevonden door het dorp op te zoeken op deze website georisques.gouv.fr
Property# LB5078N

Omgeving
Andere info
Energie

Agent die dit object beheert
Linda Bakker
Loire vallei en Sancerre
-
Land van water en wijn
-
De majestueuze rivier de Loire
-
Wijngaarden van Pouilly Fumé en Sancerre
-
Kerk van Charité-sur-Loire,
-
Werelderfgoedlijst van UNESCO.
